设计师|60㎡独居小窝,厨房“借给”玄关一部分,完工效果特好

文章图片

文章图片

文章图片

文章图片

文章图片

文章图片

文章图片

文章图片

文章图片

我有一个朋友 , 因为在外多年打拼有了一定的积蓄 , 想回家乡发展 , 加上父母给凑的一些钱 , 终于在家乡买了一套60平的小房子 , 她和我说:“住了那么多年别人的房子 , 终于可以住进属于自己的房子了” 。 即便只是一间面积不大的单身公寓 , 也算是有属于自己的小窝 。
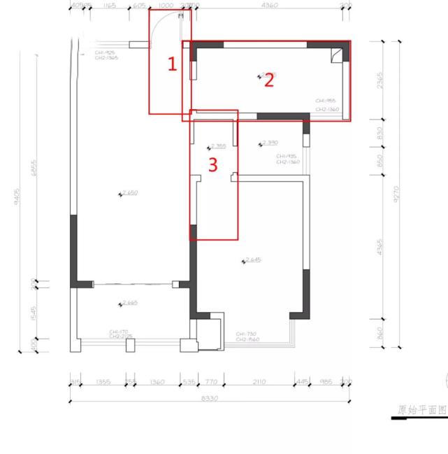
这是原户型图 , 厨房面积大 , 就是使用不高 , 连玄关都没 , 洗手台正对房间门 , 从风水角度来说不是很好 。
经过设计师改造后的户型图 , 考虑到朋友平时都在外面吃 , 厨房都没用 , 所以设计师把厨房划分出一块作为玄关和冰箱位置 。 洗手台正对房间门 , 老人觉得这样风水不好 , 想来想去 , 最后决定将厕所旋转90度 。
原户型没有玄关 , 厨房比较大 , 因为朋友不喜欢下厨做饭 , 没有用 , 所以设计师把厨房分一块作为玄关 。 玄关设计了通顶的白色橱柜 , 储物就不用担心 , 哑光材质的看起来简洁大气 。
客厅刷了大白墙 , 铺了浅灰色的地砖 , 白墙遇上灰色地砖 , 沉稳大气 。
阳台和客厅之间 , 没有挂窗帘 , 为了增强客厅采光 , 并且让整个空间显得更加简单、干净 。
沙发背景墙挂上一个圆形镜子 , 沙发周围摆放绿植和小物件 , 让客厅增添生机 , 显得不那么冷清 。
阳台铺了白色方砖 , 搭配哑光的白色橱柜 , 简约大气 。 窗帘采用百叶窗 , 虽然卫生不好打理 , 不过当阳光透过百叶照进时 , 很美 。
看看被玄关“偷走”一部分的厨房 , 厨房光线不好 , 采用大面积玻璃门能使厨房光线亮堂 。
厨房墙面铺了灰色小方砖 , 搭配白色橱柜 , 形成一个视觉感非常强的厨房 。
餐厅布置也十分简单 , 浅色餐桌布搭配黑色铁架 , 打造出明亮轻快的氛围 。 两盏圆形吊灯 , 暖色光照在餐桌上 , 十分的温馨 。
全白的卧室感觉很冷清 , 床头背景墙的两幅装饰画更显生机 。 飘窗选用双层窗帘 , 增加室内采光 , 也让卧室显得不那么拥挤 。
- 设计师|这才是豪宅,255㎡别墅设计,现代风+中式元素,入户后惹人羡慕
- 设计师|84㎡全屋打满柜子,没有玄关就造一个,同款户型直接拿去当模版了
- 设计师|一个家庭主妇负责装修新房,不请设计师,完工后的效果还不错!
- 女孩|独居女孩的精致生活,住176㎡大平层,把日子过成众人羡慕的样子
- 设计师|真的很后悔贴了墙布,翘边、起泡、脱落……真正体验才知道
- 设计师|他将21㎡的超小公寓,搞出了5个房间,入户第一刻,像进了迷宫一样
- 设计师|小房子也能展现设计之美!这个精致小家,时尚温馨宽敞大气,优秀!
- 设计师|装修并非越豪华越好,过日子温馨舒适清爽才是关键,像她家就挺好
- |设计师眼中,厨房装修8个热趋势,看完感觉刚装修的厨房就落伍了
- |历时三个月装修完工,不请设计师,效果还不错,一家人都比较满意
