|这样的三层豪华大气欧式别墅,村里盖一栋,父母都为你自豪

文章图片

文章图片

文章图片

文章图片

文章图片

文章图片

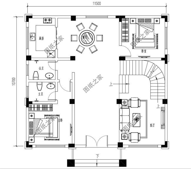
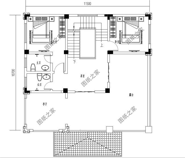
现在在农村欧式风格的别墅建的是非常多的 , 不管是在哪个地方 , 大家的审美标准似乎都差不多 , 在老家建房子 , 大多数人找的都是当地的设计团队 , 找他们设计图纸 , 他们考虑的是如果去外地找的话会不方便 , 而且怕到时候更改图纸的时候很麻烦;在本地他们找的一般都是自己认识的或者是周边人介绍的 , 认为更加的靠谱和有保障 , 但是这样的话大家的房子设计出来都是一种风格的 , 很不个性 。 今天小编就给大家介绍三款三层豪华大气欧式别墅设计图 , 保证你看了很喜欢 。款式一:欧式新农村三层复式别墅图纸 , 旋转楼梯
图纸介绍:这款户型设计有旋转楼梯 , 总占地面积130平米左右 , 整体外观看上去温馨又有活力;拱形的落地窗宽敞通透 , 尽显大气之美 。
占地面积:11.5m*10.7m , 127.528平方米左右;
建筑层高:三层;
建筑高度:12.543米(含屋顶);
设计功能:
一层户型:客厅、餐厅、厨房、卧室(带卫生间)、卧室、卫生间;
二层户型:客厅上空、起居室、卧室(带卫生间、衣帽间兼书房)、卧室x2、卫生间;
三层户型:茶室、卧室(带卫生间)、卧室、卫生间、露台、亭子;
别墅外观图展示
款式二:豪华三层欧式别墅设计图 , 挑空大客厅 , 大户型别墅图纸介绍:这款别墅功能齐全 , 有棋牌室、茶室、KTV、多居室+双露台 , 建一所这样的房子体面又大气;老人房设在一楼 , 避免老人上下楼不方便;二楼主要是休息区 , 四间卧室可以满足一家人正常居住需求;三层双露台 , 采光非常好 。
占地面积:19.6m*13.3m , 225.72平方米左右;
建筑层高:三层;
建筑高度:12.671米(含屋顶);
设计功能:
一层户型:玄关、茶室、棋牌室、客厅、餐厅、厨房、卧室(带卫生间)、卧室x2、卫生间;
二层户型:客厅上空、客厅、书房、卧室x2、卧室(带卫生间、带书房兼衣帽间)、卧室(带卫生间)、卫生间、阳台、露台;
三层户型:茶室、KTV、卧室(带衣帽间、卫生间)、卫生间、露台x2;
三层别墅外观效果图展示
款式三:欧式别墅三层设计图 , 挑空客厅 , 外观漂亮户型实用图纸介绍:这款户型是深受农村欢迎的款式 , 整体为欧式风格;外观清新简约同时又端庄稳重 , 彰显主人的品味;老人房紧邻洗手间 , 方便老人生活;二层客厅挑空搭配旋转楼梯 , 看起来非常高大上 。
- |嫂子穿成这样让我给她修下水道,你们说我应不应该去?
- 土豆|天冷了,我家五天晚餐这样吃,粗粮蔬菜多,清爽养胃,不担心长肉
- 搞笑漫画|搞笑漫画: 看到这样的对话, 真的很生气, 还好不减肥
- |北欧极简的三居室这样装修,目光所及皆是家的温柔
- |这个家不算大装修也不豪华,却是我想要的家的样子,太温馨有爱了
- 衣帽间|三层楼房设计图农村简单大气,家里人多的,可以这样盖
- |到同事家参观,一进厨房就被迷住,这样的设计真高级,回家学着装!
- |42平loft公寓这样设计,单身公寓变身双人公寓,两个人住很舒服
- 哈雷摩托|小房间别再买床了,现在流行装这样的组合柜,实用漂亮不占空间
- |全球5大豪华酒店,第一个有钱都进不去,最后一个一晚需110万
