|180平现代简约风,简练稳重,追求自然惬意

文章图片

文章图片

文章图片

文章图片

文章图片

文章图片

文章图片

文章图片

文章图片

文章图片
项目地址:昆明·九夏云水
设计风格:现代简约
项目面积:180平方
设 计 师:张玮
客户经理:全秋艳
项目经理:张启祥
▼ 业主需求
当代年轻人在快节奏的都市生活里 , 承受着社会的无形压力 , 一的工作结束后 , 疲惫不已 , 更多追求的是在快节奏生活的流行趋势下享受自由、简约、轻松的生活方式 。
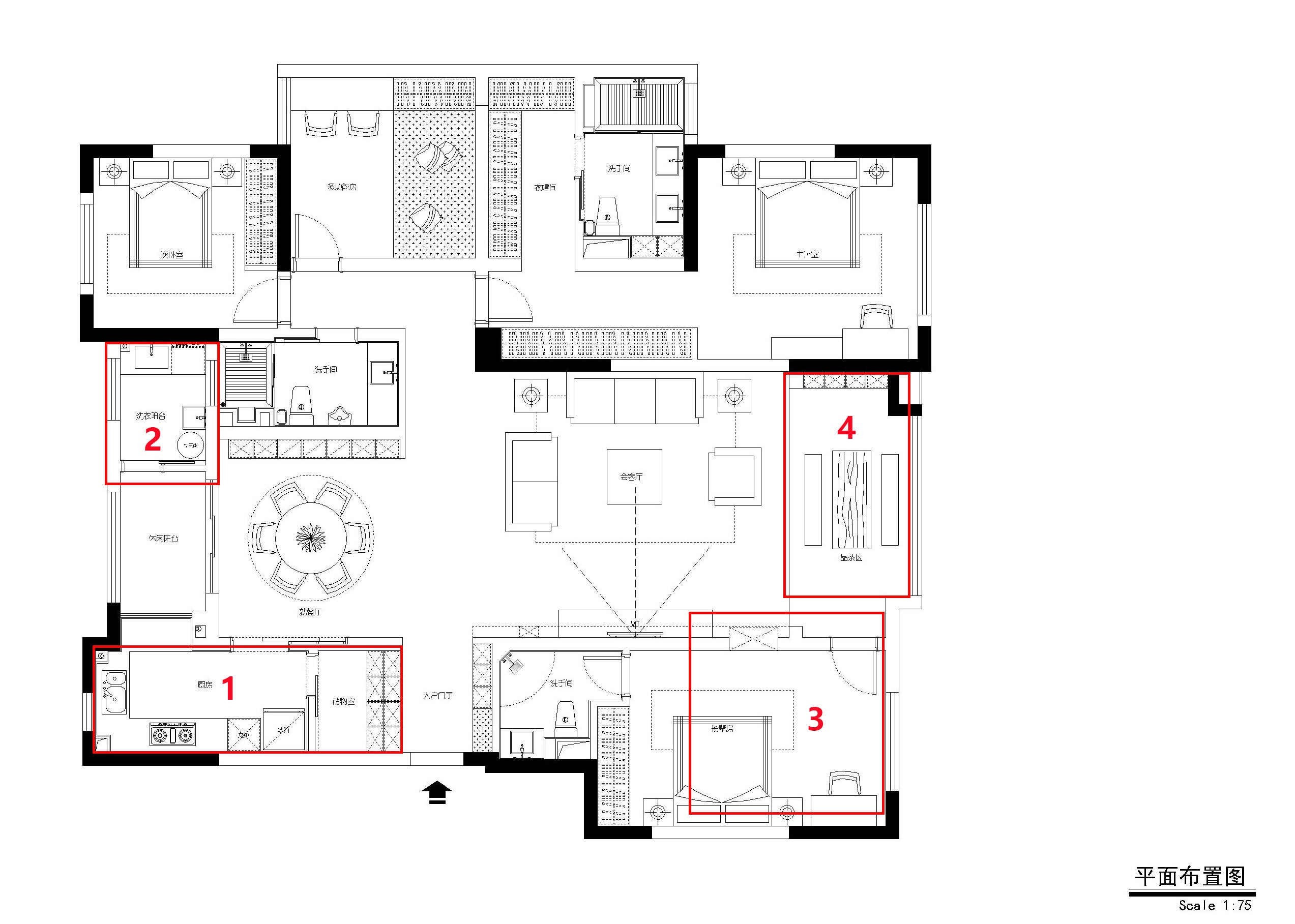
▼ 户型解析
① 厨房空间扩展到原生活阳台 , 直接采光的同时增加储物间功能;
② 扩大洗衣阳台空间 , 更能满足一家人的需求 , 空间也比较隐蔽独立;
③ 更改长辈房进门位置 , 得到整体统一的电视背景墙 , 卧室空间更私密;
④ 阳台和客厅之间的推拉门拆除 , 得到更开阔的客厅空间 。
01
玄关的存在让家更有仪式感 。 悬空换鞋区 , 入户与厨房之间设计嵌入式隐形门 , 收纳功能强 。 深色柜体造型延伸至最深处的卧室 , 深处的天空挂画均呈现了空间的独特形态 。
02
玄关、会客厅、餐厅为互通的空间形式 , 组成开放式区域包容各自的独立性 , 相互连结 , 穿透和延伸 , 使彼此之间有了多样性质的解读 。
从功能上来说 ,会客厅的功能完善 , 由会客沙发区和品茗区组成 。 色彩搭配上 , 高级灰+黄棕色+经典黑的配色 , 空间简洁硬朗 , 高级不减 。
品茗区以黑色为主导 , 简约设计 , 闲暇之余 , 静谧生活也就在这方寸之间 。 L型沙发布局舒适 , 很适合一家人观影 , 无主灯+筒灯设计 , 给家增添一丝温暖 。
03
餐厅延续了会客厅的配色及软装搭配 , 合理利用空间打造酒柜装饰墙 , 高级时尚 , 易清洁也增加收纳 。 跳跃的蓝色系窗帘 , 清新朦胧 , 与自然装饰画 , 共同演绎和谐、温馨的氛围 。
餐厨之间以推拉门作隔断 , 厨房利用与阳台之间的墙体增加一段橱柜 , 拓展了厨房的操作空间 , 将原先省出来的部分增加立柜收纳各种器具 , 丰富了厨房的收纳和生活功能 。
- 设计师|这才是豪宅,255㎡别墅设计,现代风+中式元素,入户后惹人羡慕
- |102平三室两厅装修样板间,大气精致现代风格,忍不住晒晒!
- |客厅挑空,带弧形楼梯和堂屋的别墅,完全满足现代生活需求
- |三口之家的新房,120㎡轻奢风格,精致又优雅,享受现代舒适生活
- 儿童房|130㎡三室简约,三代人原木素雅家
- 穿衣搭配|适合秋季职场女性的穿搭有哪些?这16套简约舒适穿搭,优雅干练
- |第一次装修新房,花了3个月的时间,做了简约风格的设计,很漂亮
- |170㎡大平层现代轻奢风格装修案例
- 榻榻米|做完榻榻米会是什么样?现代风榻榻米效果分享
- 张根硕|因贪吃发福至180斤,张根硕33岁就过气,现减肥成功变肌肉男
