|农村10x12米三层自建房设计图给你备好了,是土豪的点进来

文章图片

文章图片

文章图片

文章图片

文章图片

文章图片

文章图片

文章图片

文章图片

文章图片

想建房子 , 但是没有好看的设计图纸?来找我 , 给你分享各种风格款式的设计图纸 , 还有带露台的 , 带阁楼的 , 带车库的 , 各式各样 , 任您选择 , 保您满意 , 绝对有一款能击中您的心脏 。 下边就赶快看看我给大家分享的这五套10×12米三层自建房设计图纸吧 。户型一:农村三层别墅设计图 , 占地110平米 , 带全套施工图
图纸介绍:这款户型看起来非常高档 , 欧式风格的设计给人一种豪气的感觉 , 多窗设计增加房间的采光 , 三楼还有凉亭的设计 , 室内有储藏室、书房、健身房等多功能设计 。
别墅外观图展示
占地面积:10m*12.35m , 110平方米左右;
建筑层高:三层;
建筑高度:12.75米(含屋顶);
设计功能:
一层户型:玄关、客厅、餐厅、厨房、储物间、卫生间;
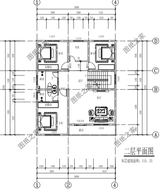
【|农村10x12米三层自建房设计图给你备好了,是土豪的点进来】二层户型:小客厅、卧室x3、书房、卫生间、阳台;
三层户型:卧室、健身房、卫生间、露台;
别墅户型图展示
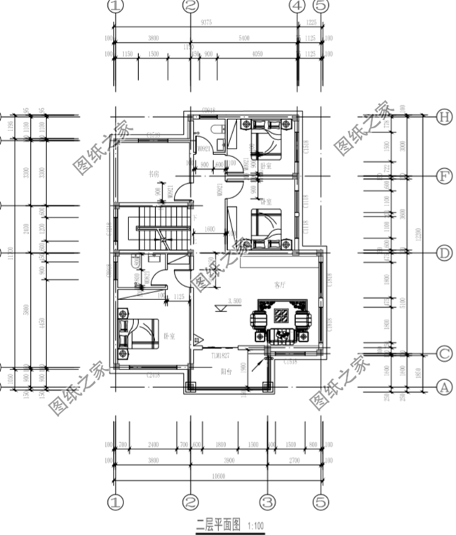
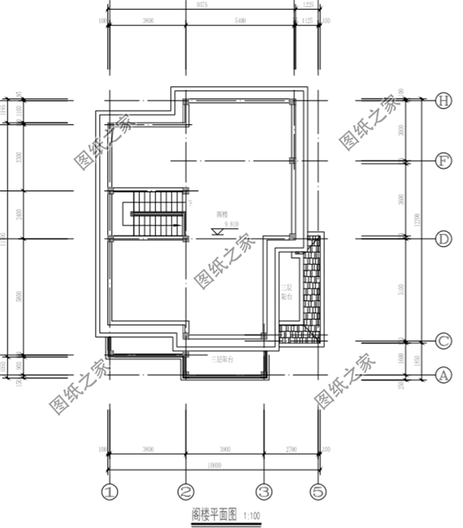
户型二:三层自建房设计效果图 , 新农村自建房图纸图纸介绍:这款开间近10米 , 进深12米 , 总占地116平方米左右 , 复式落地窗 , 增强屋内采光 , 外观欧式风格 , 堪称豪宅 。
三层别墅外观图展示
占地面积:9.7m*12m , 116平方米左右;
建筑层高:三层;
建筑高度:12.92米(含屋顶);
- |这样的三层豪华大气欧式别墅,村里盖一栋,父母都为你自豪
- 衣帽间|三层楼房设计图农村简单大气,家里人多的,可以这样盖
- |在农村有“新四大家鱼”令钓鱼人“难受”,你认识几种呢
- 豆角|有5种蔬菜晒干后更美味!农村人拿来炖肉,城里人争先恐后去品尝
- 下酒菜|这是农村最接地气的一道菜,也是父亲一生最爱的下酒菜,如今少见
- |11×11米,复式三层平屋顶别墅,好看又省钱,适合农村建
- |农村一层自建房效果图,另附4室一厅详细图,建房一定要看
- 结婚|17×10米农村别墅,新中式风格设计,好看到想舔屏
- |带架空层设计的农村豪宅,造型气派采光佳,真乃全村第一美
- 结婚|平屋面设计的一栋四层农村别墅,配大堂屋,限高地区也能建
