|农村三层自建房效果图,经济实用,这么盖你不亏

文章图片

文章图片

文章图片

文章图片

文章图片

文章图片

十一假期刚过 , 第一天上班的你是不是还在想念家乡的舒适 , 在家阳光充足空气新鲜 。 在房子里孩子想怎么玩怎么玩 , 不用担心影响楼下邻居 。 车在自家门口随意停 , 出门也没有交通堵塞人潮拥挤的时候 。 说到这是不是有在家乡建房的想法了?现在很多人的选择都是 , 年轻时在外打拼 , 到了一定年纪回到家乡发展养老 , 在家乡建一栋别墅 , 享受生活 。今天小编带来了三款农村自建的三层别墅设计图以及户型图 , 看看有没有你喜欢的 。
第一款:新中式三层别墅效果图以及户型图占地面积:10.16m*11.3m , 120平方米左右
建筑高度:12.37米(含屋顶)
效果图
平面图
一层户型:客厅、厨房、餐厅、卧室(带卫生间)、卫生间
平面图
二层户型:客厅上空、起居室、卧室(带卫生间)、卧室x2、卫生间、阳台
平面图
三层户型:卧室x2、卧室(带卫生间)、卫生间、阳台、露台这款新中式三层别墅效果图 , 在传统的中式房屋效果上做出了改进添加了现代元素 , 跟紧时代潮流 , 别墅外观采用灰白石材搭配蓝色的屋顶 , 再加上一些棕色线条加以装饰 , 色调温馨 , 具有家的归属感 。 整体经典大气 , 是回乡建房的好选择 。
第二款:复式三层别墅设计图以及户型图
效果图
占地面积:14.14m*9.64m , 134平方米左右
建筑高度:12.6米(含屋顶)
设计功能:
地下室:功能自行设计
平面图
一层户型:门厅、客厅、餐厅、厨房、卧室(带卫生间)、卫生间
平面图
二层户型:客厅上空、起居室、卧室、卧室(带卫生间)、卧室(带衣帽间)、卫生间、阳台
平面图
三层户型:客厅、卧室x2、卧室(带卫生间)、卫生间、露台
平面图
这款独栋复式三层别墅 , 设有地下室 , 外墙装饰采用淡黄色、灰绿色面砖 , 屋顶斜瓦采用红色西瓦 。 二楼有阳台 , 三楼有露台 , 这样的设计居住舒适度高 , 整体外观时尚简约、不失气质 , 相信很多朋友表示非常喜欢 。
第三款:经典欧式三层别墅设计图以及平面图
效果图
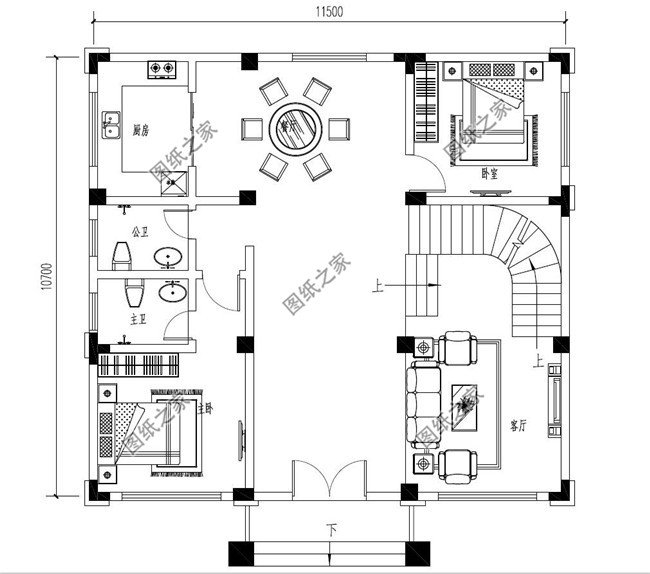
占地面积:11.5m*10.7m , 127.528平方米左右
建筑高度:12.543米(含屋顶)
设计功能:
一层户型:客厅、餐厅、厨房、卧室(带卫生间)、卧室、卫生间
- |这样的三层豪华大气欧式别墅,村里盖一栋,父母都为你自豪
- 衣帽间|三层楼房设计图农村简单大气,家里人多的,可以这样盖
- |在农村有“新四大家鱼”令钓鱼人“难受”,你认识几种呢
- 豆角|有5种蔬菜晒干后更美味!农村人拿来炖肉,城里人争先恐后去品尝
- 下酒菜|这是农村最接地气的一道菜,也是父亲一生最爱的下酒菜,如今少见
- |11×11米,复式三层平屋顶别墅,好看又省钱,适合农村建
- |建房尺寸一致,新中式风格设计的两栋豪宅,看一眼就成了我最爱
- |农村10x12米三层自建房设计图给你备好了,是土豪的点进来
- |农村一层自建房效果图,另附4室一厅详细图,建房一定要看
- 结婚|17×10米农村别墅,新中式风格设计,好看到想舔屏
